Používame cookies

Súbory cookie a ďalšie technológie sledovania používame na zlepšenie vášho zážitku z prehliadania našich webových stránok, na to, aby sme vám zobrazovali prispôsobený obsah a cielené reklamy, na analýzu návštevnosti našich webových stránok a na pochopenie toho, odkiaľ naši návštevníci prichádzajú. Viac info

 

Kancelársky priestor s parkovaním priemyselná zóna

Obec: Žilina
Okres: Žilina
Kraj: Žilinský kraj
Druh: Objekty
Typ: Prenájom
Typ objektu: Kancelárie
10 €/m2/mesiac

Popis nehnuteľnosti

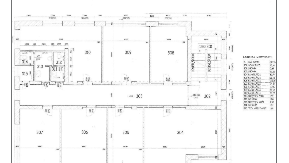
Kancelársky priestor na 3.NP v 4 - podlažnej budove v priemyselnej zóne s vlastným parkoviskom.   K dispozícii  sú kancelárie č.308 o výmere 16m2, č. 310 o výmere 24m2,  č. 307 o výmere 17m2, č.306 o výmere 19m2. Budova disponuje SBS a vlastným priestranným parkoviskom, kde je možnosť umiestnenia aj menšieho skladu. Cena je vrátane energií a parkovania, k cene treba pripočítať DPH. Kancelárie sa dajú prenajať aj jednotlivo. V budove sú  k dispozícii ešte  kancelárie na 2.NP o celkovej výmere 65m2 a na 4.NP o celkovej výmere 111m2. Provízia pre RK je 200,-  EUR jednorázovo.

Vlastnosti

Status:
aktívne
Vlastníctvo:
iné
Úžitková plocha:
76 m2
Stav:
pôvodný stav
Celková plocha:
76 m2
Inžinierske siete:
áno
Voda:
áno
Elektrika:
áno
Plyn:
áno
Kanalizácia:
áno

Pozrieť na mape

Maklér

Priame, prosté jednanie budí v ľuďoch všetky dobré inštinkty. Ak jednáš otvorene a s úmyslom poslúžiť ľuďom, tvoj úspech je neodvratný.

Tomáš Baťa

Radi Vám poradíme

Podobné nehnuteľnosti