Používame cookies

Súbory cookie a ďalšie technológie sledovania používame na zlepšenie vášho zážitku z prehliadania našich webových stránok, na to, aby sme vám zobrazovali prispôsobený obsah a cielené reklamy, na analýzu návštevnosti našich webových stránok a na pochopenie toho, odkiaľ naši návštevníci prichádzajú. Viac info

 

Kancelársky priestor širšie centrum

Ulica: Framborská
Mestská časť: Staré mesto
Obec: Žilina
Okres: Žilina
Kraj: Žilinský kraj
Druh: Priestory
Typ: Prenájom
Typ objektu: Kancelárske priestory
Iné:
85 €/m2/rok

Popis nehnuteľnosti

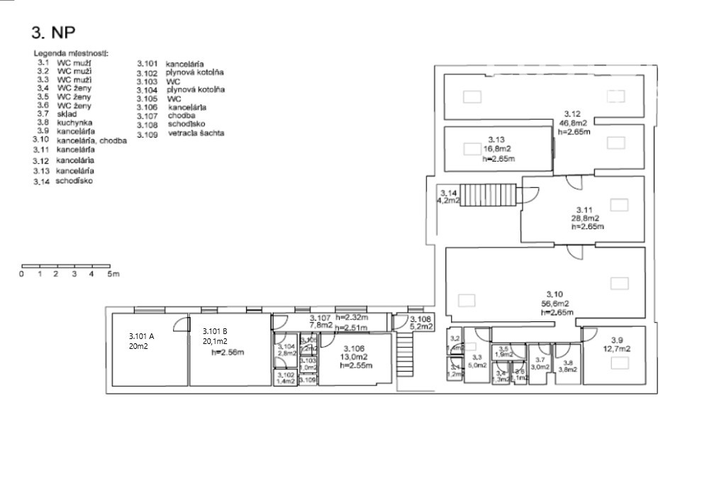
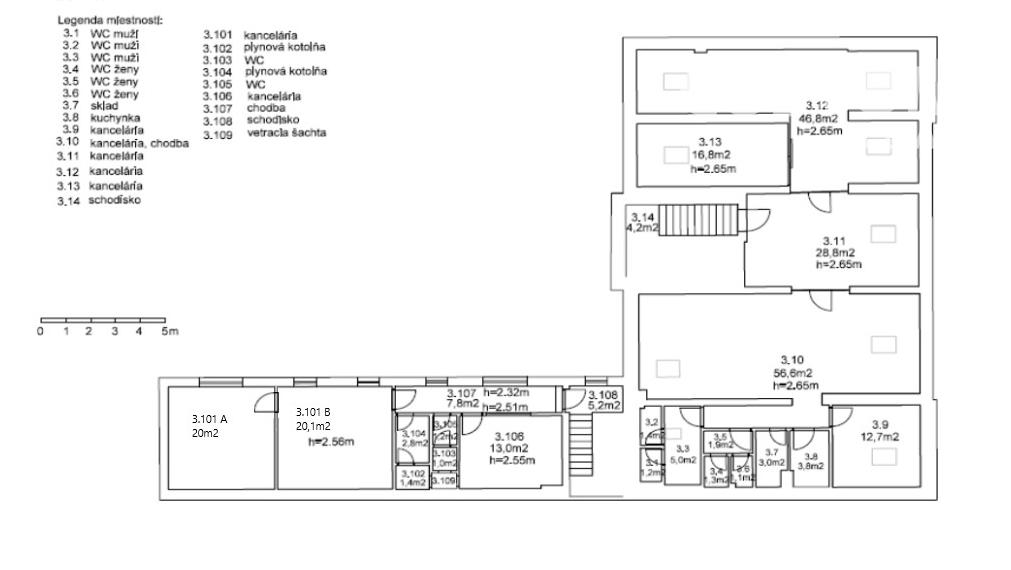
Ponúkame  na prenájom reprezentatívny kancelársky priestor situovaný len 5 minút od úplného centra mesta, v historickej zrekonštruovanej budove. Na priloženom pôdoryse ide o miestnosti 3.01 - 3.13.

Priestor sa nachádza na 3. nadzemnom podlaží (3/3) a poskytuje príjemné pracovné prostredie s dostatkom denného svetla. Dispozične pozostáva z 5 samostatných kancelárií, kuchynky, skladu a sociálnych zariadení. Samozrejmosťou je klimatizácia, ktorá zabezpečí komfort počas celého roka.

Veľkou výhodou je vlastné parkovisko priamo pri budove, čo ocenia nielen zamestnanci, ale aj klienti.

Priestor je ideálny pre firmy hľadajúce kombináciu výbornej dostupnosti, reprezentatívneho prostredia a praktického dispozičného riešenia.

Cena 1 parkovacieho miesta je 35 EUR/mesiac. Priestor je k dispozícii od 01.05. 2026. Poplatok pre RK je 200,- EUR.

Vlastnosti

Status:
aktívne
Vlastníctvo:
korporácia
Úžitková plocha:
180 m2
Podlahová plocha:
180 m2
Stav:
úplne prerobený
Energetický certifikát:
žiadne
Počet poschodí od prízemia vyššie:
3
Poschodie:
3
Inžinierske siete:
áno
Vykurovanie - centrálne:
áno

Pozrieť na mape

Maklér

Priame, prosté jednanie budí v ľuďoch všetky dobré inštinkty. Ak jednáš otvorene a s úmyslom poslúžiť ľuďom, tvoj úspech je neodvratný.

Tomáš Baťa

Radi Vám poradíme

Podobné nehnuteľnosti